Information om boligtype B
101 m² – moderne og rummelig bolig med fokus på komfort.
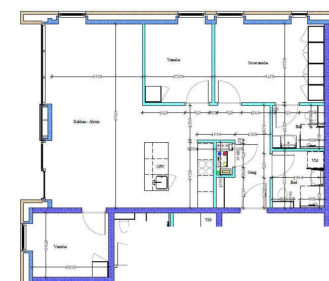
Når du træder ind i denne bolig, bydes du velkommen af en indbydende entré. Til venstre finder du en praktisk bøjlestang til overtøj, og til højre åbner døren ind til lejlighedens første badeværelse. Badeværelset er elegant indrettet med et skabsarrangement og vask i kunstmarmor samt et oplyst spejl (Svane). Bruseområdet er udstyret med linjeafløb og brusevinge i klart glas, som sikrer et moderne udtryk.
På det første badeværelse findes plads til både vaskemaskine og tørretumbler – ideelt til hverdagens behov.
I forlængelse af gangen finder du lejlighedens soveværelse, som måler ca. 12 m². Her er en rummelig skabsvæg med fire skabe (to på 60 cm og to på 80 cm), der giver rigelig opbevaringsplads. I soveværelset findes også indgangen til lejlighedens andet badeværelse.
Længere fremme findes lejlighedens andet værelse med skab, det tredje og sidste værelse findes i forbindelse med stuen.
Boligens hjerte er det imponerende køkken-alrum på hele 35 m², hvor funktionalitet og æstetik går hånd i hånd. Det flotte Svane-køkken er indrettet med god skabsplads, vaske-ø og alt i hårde hvidevarer, herunder ovn, emhætte, køle-/fryseskab, opvaskemaskine samt en moderne induktionskogeplade. Her er plads til både madlavning og hyggelige stunder med familie og venner.
Lejligheder i stueplan byder på en rummelig flisebelagt terrasse på 21 m² med 50 × 50 cm fliser – perfekt til afslapning og udeliv. Bor du i en lejlighed på 1. sal, kan du nyde en 12 m² stor terrasse med kompositgulv (WPC), der kræver minimal vedligeholdelse.
En bolig, der forener moderne komfort, kvalitet og funktionalitet – velkommen hjem!
Fakta
- 101 m²
- 4 værelser (køkkenalrum + 3 værelser)
- 2 bad
- Køle-/fryseskab, emhætte, ovn, induktionskogeplade, opvaskemaskine
- Gulvvarme i alle rum og eget ventilationsanlæg
- Depotrum 2 m²
Materialer
- Lofter: Hvid træbeton ultrafin
- Gulve: Bad 30×60 cm klinke (lys grå). Øvrige rum: LVT vinyl eg (plank 184×1219 mm)
Forsyning
- Vand: aconto 200 kr./md.
- Varme: betales direkte til Hadsund Fjernvarme
- El: betales direkte til selvvalgt elselskab
Plantegning
Type B – klik for at se stor.
Alle tegninger og information er vejledende.






