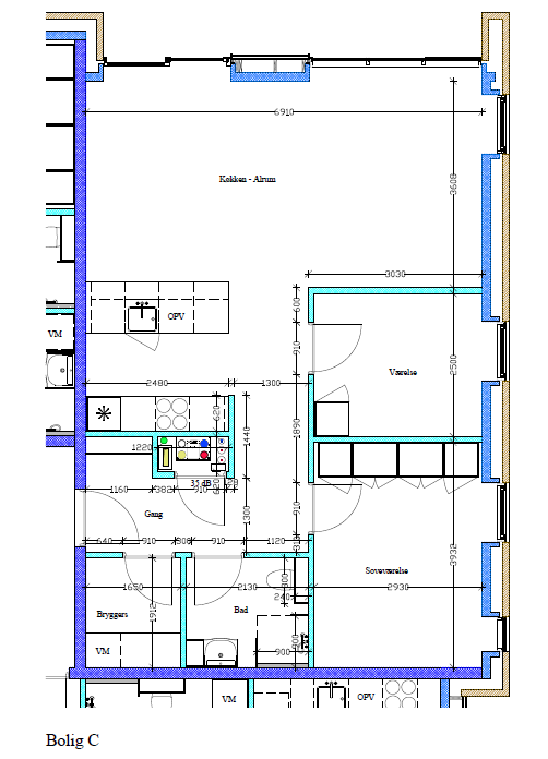
Information om boligtype C
91 m² – moderne og funktionel bolig med fokus på komfort.
Når du træder ind i denne bolig, bydes du velkommen af en indbydende entré. Til venstre finder du en praktisk bøjlestang til overtøj, og til højre åbner døren ind til bryggerset. Her er der god arbejdsplads med en bordplade, to underskabe (Svane) samt plads til både vaskemaskine og tørretumbler – ideelt til hverdagens behov.
Lejlighedens badeværelse ligger ligeledes i forbindelse med entréen. Badeværelset er elegant indrettet med et skabsarrangement og vask i kunstmarmor samt et oplyst spejl (Svane). Bruseområdet er udstyret med linjeafløb og brusevinge i klart glas, som sikrer et moderne udtryk.
I forlængelse af gangen finder du lejlighedens soveværelse, som måler ca. 11 m². Her er en rummelig skabsvæg med fire skabe (to på 60 cm og to på 80 cm), der giver rigelig opbevaringsplads. Udover soveværelset findes yderligere et værelse på 7 m² med skab.
Boligens hjerte er det imponerende køkken-alrum på hele 36 m², hvor funktionalitet og æstetik går hånd i hånd. Det flotte Svane-køkken er indrettet med god skabsplads og alt i hårde hvidevarer, herunder ovn, emhætte, køle-/fryseskab, opvaskemaskine samt en moderne induktionskogeplade. Her er plads til både madlavning og hyggelige stunder med familie og venner.
Lejligheder i stueplan byder på en rummelig flisebelagt terrasse på 21 m² med 50 × 50 cm fliser – perfekt til afslapning og udeliv. Bor du i en lejlighed på 1. sal, kan du nyde en 12 m² stor terrasse med kompositgulv (WPC), der kræver minimal vedligeholdelse.
En bolig, der forener moderne komfort, kvalitet og funktionalitet – velkommen hjem!
Fakta
- 91 m²
- 3 værelser (køkkenalrum + 2 værelser)
- 1 bad
- 1 bryggers
- Køle-/fryseskab, emhætte, ovn, induktionskogeplade, opvaskemaskine
- Gulvvarme i alle rum
- Eget ventilationsanlæg i hver lejlighed
- Depotrum 2 m²
Materialer
- Lofter: Hvid træbeton ultrafin
- Gulve: Badeværelse og bryggers 30×60 cm klinke (lys grå). Øvrige rum: LVT vinyl eg (plank 184×1219 mm)
Forsyning
- Vand: aconto 200 kr./md.
- Varme: betales direkte til Hadsund Fjernvarme
- El: betales direkte til selvvalgt elselskab
Plantegning
Type C – klik for at se stor.
Alle tegninger og information er vejledende.






